Senior Capstone Project

Trying Times Theater

Trying Times Theater is a Post-Covid take on the Golden Age Cinemas. It realizes it’s mortality as a business after Covid and uses those tropes as marketing.

But, Trying Times Theater isn’t just a theater. It’s an exercise in experience design. This is the brand, space, packaging, experience, that I curated from the ground up for my senior capstone.

Make it
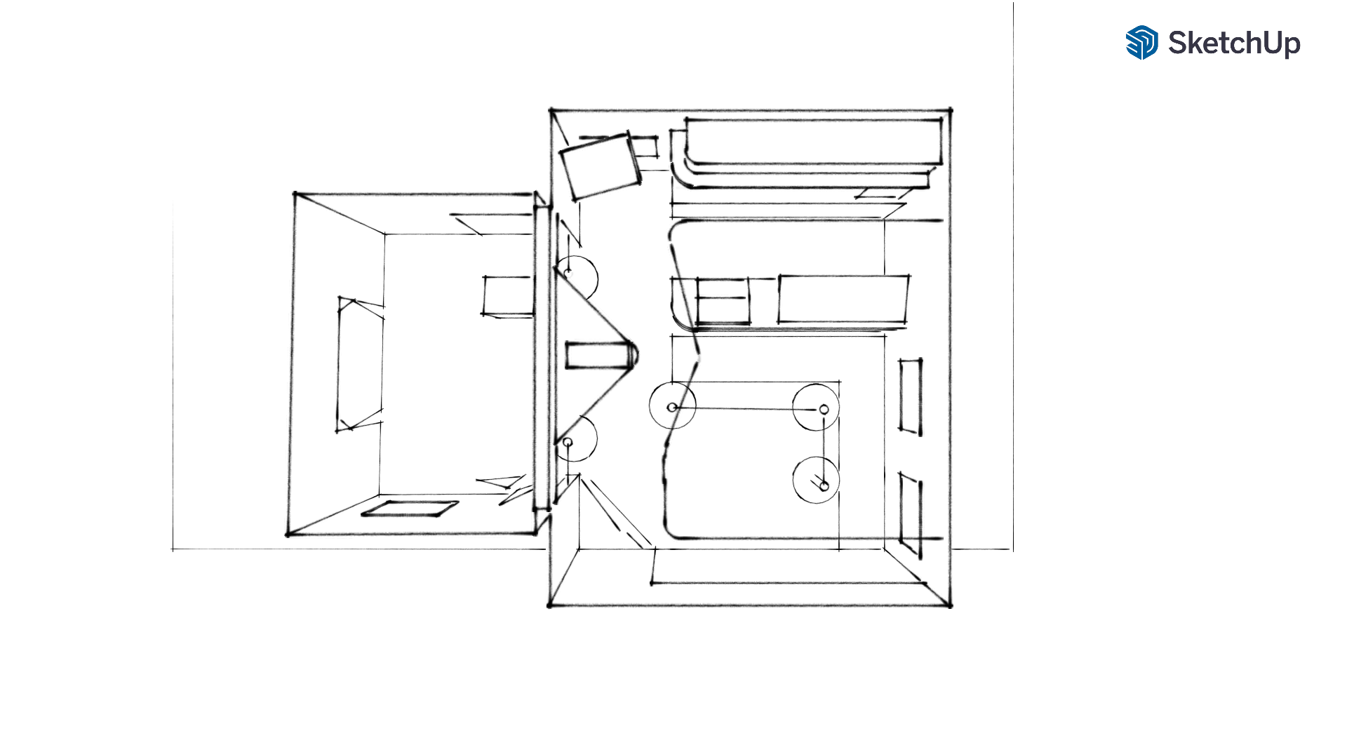
  • When I began this project in August 2022, I was having the most trouble with where to start. Throughout this project working from general to specific was extremely helpful in insuring that the project would be completed on time. Once I decided which gallery I could use for the theater, I began planning in 2D then transferred that into 3D. This was very helpful because, when I moved everything into the gallery it wasn’t really the first time.

  • Once I had a loose grip on the space itself I began ideation for branding. I knew going in that I didn’t want this theater to be a Golden Age Cinema. I felt this was something everyone has seen, and Post-Covid will never be seen again. So taking elements of Golden-Age Cinema and combining that with a graveyard aesthetics and economic mortality ended up bringing me to the name Trying Times Theater.

  • After a few months, the planning phase was pretty much over. The branding was solid, and the space was planned, and each of the pieces that needed built by hand like the poster frames, concessions bar, and menu had been designed it was time to start building. But it had to be built in a modular fashion because the gallery wasn’t available to be used until the week before my show opened.

  • After 8-9 months of planning, building, budgeting, design, and everything in between, I had a new appreciation. An appreciation for Creative Directors. But it had all paid off, now I just had to learn to make popcorn!

Plan+ Process

An Exercise in Experience Design.